Suzhou Outuo Lifting Technology Co., Ltd
欢迎来厂参观,免费携带物料试机,专车接送!
产品类别:门式起重机
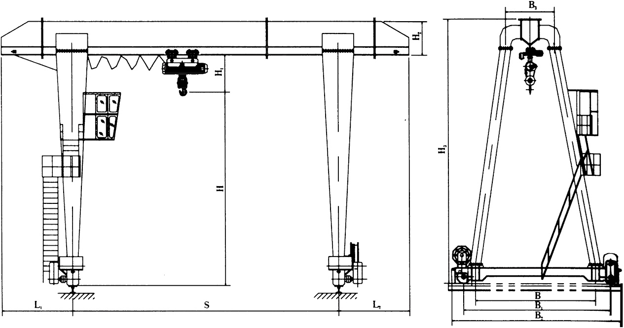
产品说明: MH型3~20吨电动葫芦门式起重机(箱型式) MHType3~20tElectricHoistGantryCran
乔经理:18662173777
邮箱:outuoqz@163.com
地址:江苏省苏州市吴中区石湖西路188号
PRODUCT INTRODUCTION
MH型3~20吨电动葫芦门式起重机(箱型式)
MHType3~20tElectricHoistGantryCrane(Boxtype)
简介ABriefIntroduction
MH型电动葫芦门式起重机与CDMD等型号的电动葫芦配套使用,是一种有轨运行的中小型起重机,其适用起重量3~20吨,适用跨度12~30米,工作环境-20℃~+40℃内。
本产品为一般用途起重机,多用于露天场所及仓库的装卸或抓取物料,本产品有地面操纵和室内操纵两种型式。
MHModelElectricHoistGirderGantryCraneisusedtogetherwithCDMDModelelectrichoists.Itisatracktravellingsmallandmedium-sizedcrane.ItsproperLiftingweightis3to20tons.Properspanis12to30meters,itsproperworkingtemperatureis-20℃to40℃.
Thisproductisaregularcranewidelyusedatopengroundandwarehousestolqad,unloadorgrabmaterials.Ithastwocontrollingmethods,namelyground,controllingandroomcontrolling.
PRODUCT ADVANTAGES
专业的研发技术人员
研究产品种类多种多样
产品可长时间稳定工作
拥有完善的售后服务体系
NEWS INTRODUCTION
在检查单梁起重机的时候 要注意以下几点:1检查各减速器的油量,如低于规定的油面高度时,应及时,油质必须干净,均不得有腐蚀...
MESSAGE
返回顶部
在线客服
18662173777
扫一扫 关注我们